Visit No Straight Lines

Space Planning

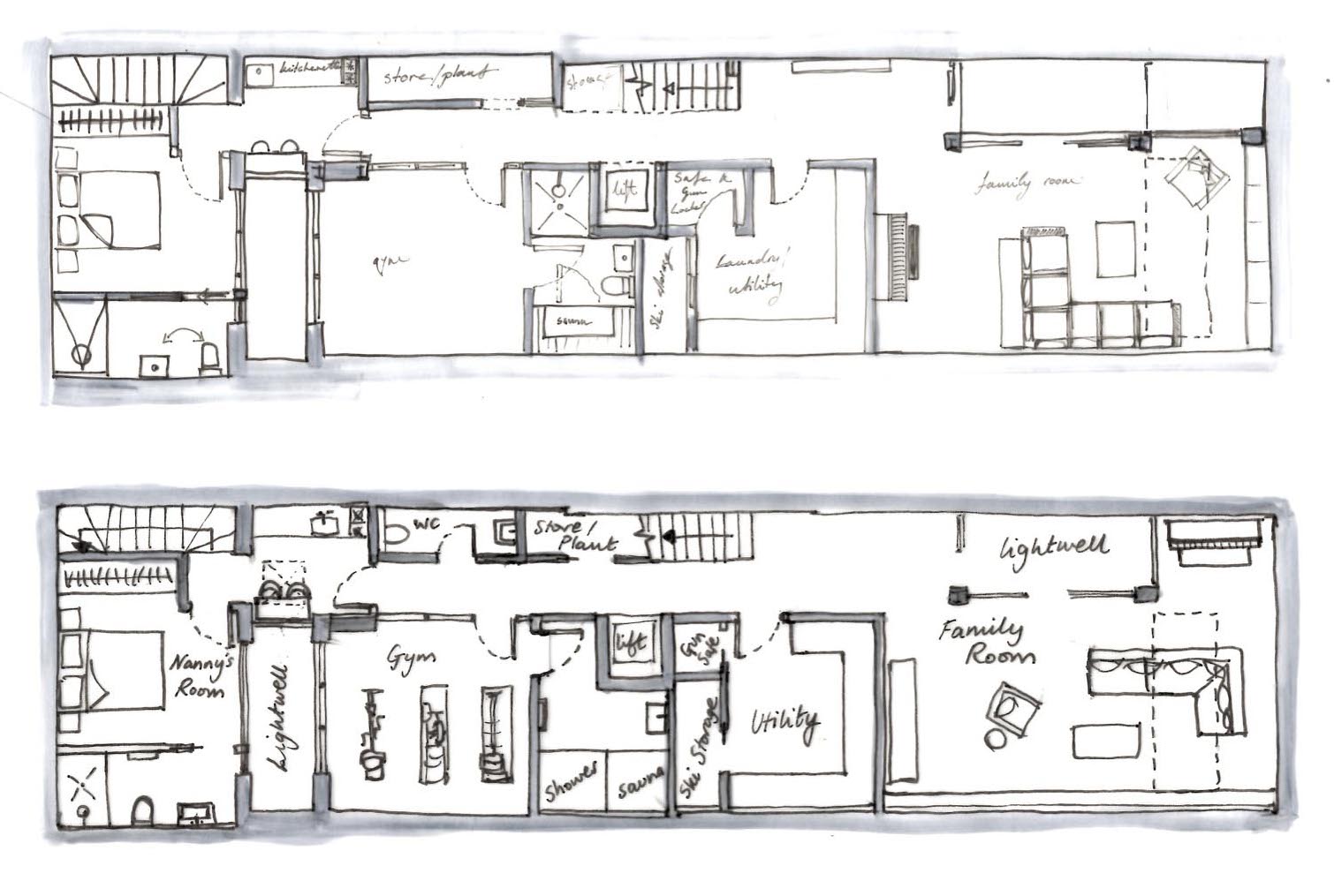
Understanding exactly how our client wishes to use the space informs all of our design decisions and our thinking often goes beyond a straightforward solution. We consider the use of every inch of space, create sequences of rooms with a purpose and flow, where natural light is maximised and where maximum value can be added to the property.

services_post

Gallery

VIEW GALLERY

Next Service

VIEW SERVICE